31-unit 107 Friendly Ct, FREDERICKSBURG, VA

$3,000

Previous Next

2,725

Square feet

2.95

Acres

About 31-unit 107 Friendly Ct

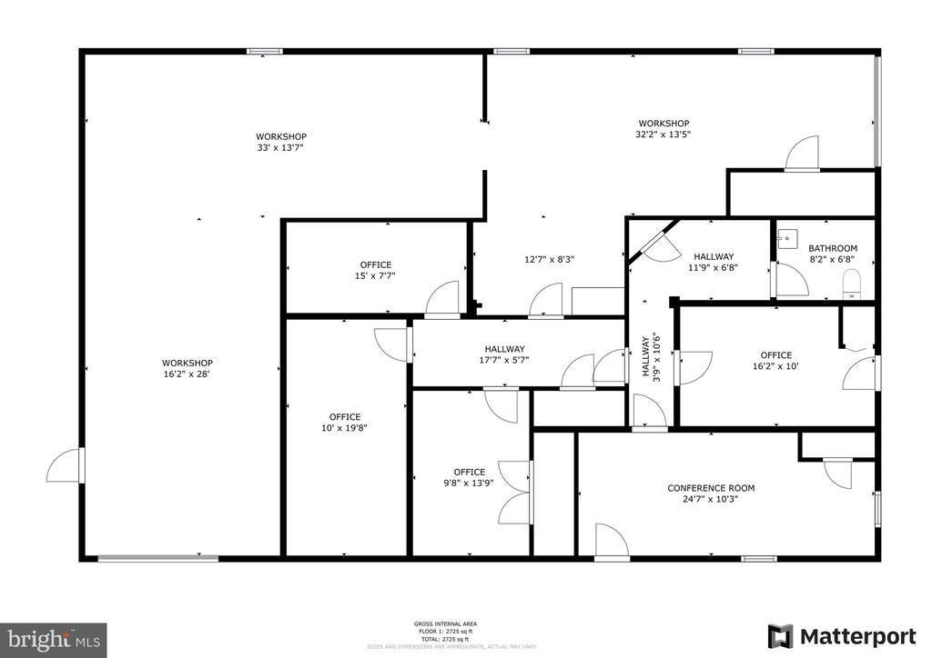
31-Unit 107 Friendly Court is prime warehouse/office space in Fredericksburg that is strategically situated just off Chatham Heights Road. This versatile warehouse space at offers convenience and accessibility in one of Fredericksburg’s most connected industrial zones. Located minutes from Cool Spring Road, U.S. Route 1, I-95, and downtown Fredericksburg, this location is ideal for businesses needing regional access and a central Virginia hub. Zoned M1 (Light Industrial), this property is suitable for a wide range of industrial and office-related uses (excluding automotive mechanics or detailing). The space is exceptionally clean and well-maintained, combining warehouse functionality with high-quality office amenities. At 2700 sqft, the layout is conducive to shipping/receiving, light manufacturing, distribution or client-facing operations, etc. Rent includes CAM, Water/Sewer and Electrical, Property Insurance and Real Estate Taxes. Key Features: Flexible Layout: Includes 4 spacious, neutral-colored offices, ideal for administrative or client-facing operations. Drive-In Warehouse Bay: Convenient loading and unloading via ground-level drive-in access. 200-amp electrical service Newer water heater Access ramp at the main entrance Conditioned Warehouse Space 3 Parking Spaces (1 handicap) in front of office, additional street parking is available along Friendly Ct This unit presents an excellent opportunity for businesses seeking a professional, move-in-ready industrial space in a high-demand area with outstanding highway connectivity.

Features of 31-unit 107 Friendly Ct

MLS® # VAST2040502
Price $3,000
Bathrooms 0.00
Square Footage 2,725
Acres 2.95
Year Built 1985
Type Commercial Lease
Sub-Type Industrial
Status Active

Community Information

Address 31-unit 107 Friendly Ct
City FREDERICKSBURG
County STAFFORD-VA
State VA
Zip Code 22405

Amenities

Parking Paved Parking, Handicap Parking
Is Waterfront No

Interior

Heating Heat Pump(s)
Cooling Central A/C, Heat Pump(s)
Has Basement No
Fireplace No
# of Stories 1

Exterior

Exterior Frame
Lot Description Backs to Trees
Roof Asphalt

School Information

District STAFFORD COUNTY PUBLIC SCHOOLS
High CALL SCHOOL BOARD

Additional Information

Date Listed July 2nd, 2025
Days on Market 110
Zoning M1
Foreclosure No
Short Sale No
RE / Bank Owned No

Listing Details

OfficeRiver Fox Realty, LLC
Contact Info5406142778

Listing Map

Request a Showing

Provide a valid email address.
When would you like to view this property?