31-unit 105 Friendly Ct, FREDERICKSBURG, VA

$3,000

Previous Next

2,200

Square feet

2.95

Acres

About 31-unit 105 Friendly Ct

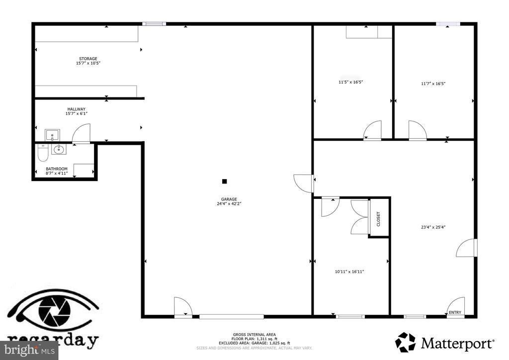
31-Unit 105 Friendly Court is prime warehouse/office space in Fredericksburg that is strategically situated just off Chatham Heights Road. This versatile warehouse space at offers convenience and accessibility in one of Fredericksburg’s most connected industrial zones. Located minutes from Cool Spring Road, U.S. Route 1, I-95, and downtown Fredericksburg, this location is ideal for businesses needing regional access and a central Virginia hub. Zoned M1 (Light Industrial), this property is suitable for a wide range of industrial and office-related uses (excluding automotive mechanics or detailing). The space is exceptionally clean and well-maintained, combining warehouse functionality with high-quality office amenities. At 2,200 sqft, the layout is conducive to shipping/receiving, light manufacturing, distribution or client-facing operations, etc. Rent includes CAM, Water/Sewer and Electrical, Property Insurance and Real Estate Taxes. Key Features: Flexible Layout: Includes 3 spacious, neutral-colored offices, ideal for administrative or client-facing operations. Drive-In Warehouse Bay: Convenient loading and unloading via ground-level drive-in access. 200-amp electrical service Conditioned Warehouse Space 3 Parking Spaces (1 handicap) in front of office, additional street parking is available along Friendly Ct This unit presents an excellent opportunity for businesses seeking a professional, move-in-ready industrial space in a high-demand area with outstanding highway connectivity.

Features of 31-unit 105 Friendly Ct

MLS® # VAST2041624
Price $3,000
Bathrooms 0.00
Square Footage 2,200
Acres 2.95
Year Built 1985
Type Commercial Lease
Sub-Type Industrial
Status Active

Community Information

Address 31-unit 105 Friendly Ct
City FREDERICKSBURG
County STAFFORD-VA
State VA
Zip Code 22405

Amenities

Is Waterfront No

Interior

Heating Heat Pump(s)
Cooling Central A/C, Heat Pump(s)
Has Basement No
Fireplace No
# of Stories 1

Exterior

Exterior Frame
Roof Asphalt

School Information

District STAFFORD COUNTY PUBLIC SCHOOLS

Additional Information

Date Listed August 5th, 2025
Days on Market 76
Zoning M1
Foreclosure No
Short Sale No
RE / Bank Owned No

Listing Details

OfficeRiver Fox Realty, LLC
Contact Info5406142778

Listing Map

Request a Showing

Provide a valid email address.
When would you like to view this property?